VALÈNCIA. La cadena hotelera navarra Zenit gana peso en València al calor del auge del turismo de los últimos años en la ciudad. Y lo hace, además, en uno de los barrios más demandados por el sector como es Russafa, que por su amplia oferta de ocio y servicios y por su cercanía al centro está acumulando varios proyectos de alojamientos turísticos. De este modo, la cadena de Javier Catalán se ha quedado con un solar en la calle Cádiz, 74, que llevaba varios años parado y en donde levantará su segundo hotel en el 'Cap i Casal' con categoría cuatro estrellas, 72 habitaciones y 29 plazas de aparcamiento.
El expediente administrativo de este proyecto se inició en abril de 2022, por lo que estaría exento de la suspensión temporal de licencias que ha aplicado el Ayuntamiento de València al haberse iniciado la tramitación de manera previa a la moratoria de 2024. Su retraso se debe a varios informes desfavorables, aunque el pasado mes de julio presentó nueva documentación para subsanar estos errores que está pendiente de evaluación, según ha podido saber este diario.
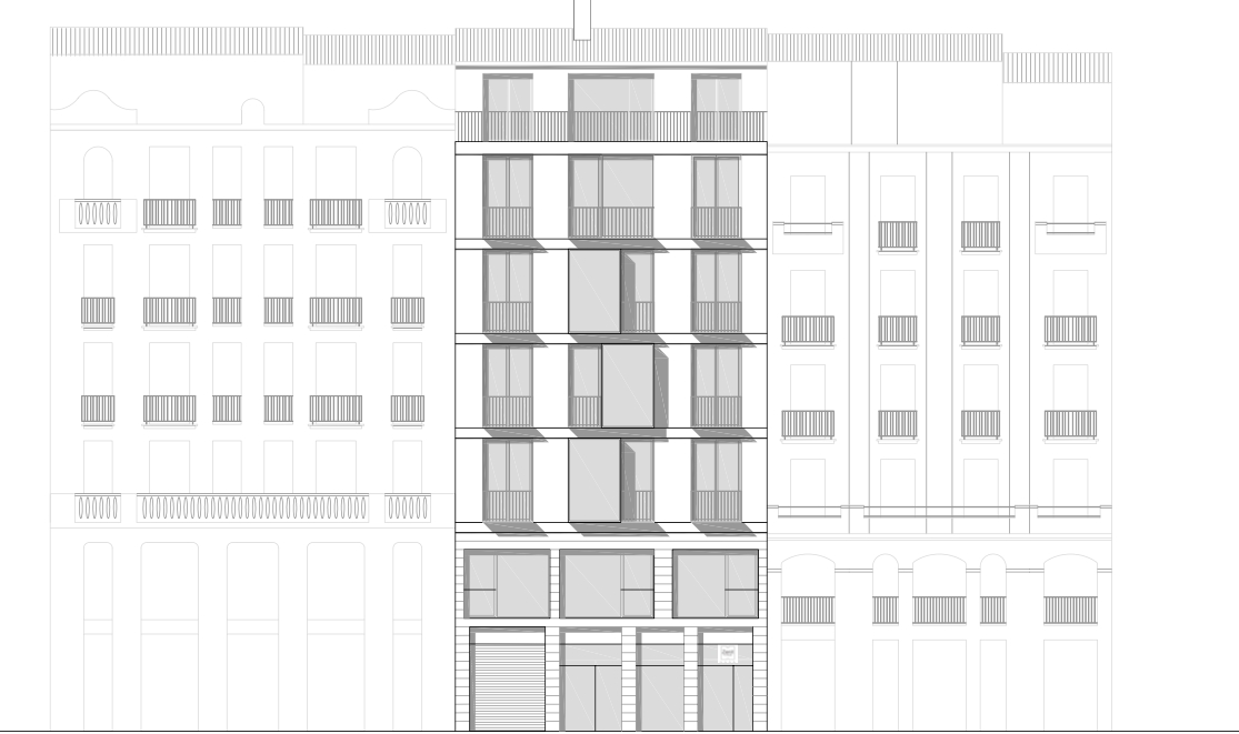
De acuerdo con el proyecto presentado, y en exposición pública, la parcela en la que se levantará el nuevo alojamiento hotelero proviene de la agrupación de dos suelos originarios, uno de los cuales tiene un frente a la vía pública y el otro se encuentra en el interior del patio de manzana. La nueva edificación, con una superficie construida de 3.474,55 metros cuadrados, pretende ocupar ambas parcelas, con un perfil edificatorio de planta baja, cinco plantas superiores y ático en el frente que da a la vía pública. Además se construirá una planta semisótano y una planta sótano.

- Alzado principal. -
Presupuesto de 3,1 millones
El acceso peatonal principal estará la calle Cádiz y el edificio contará con dos núcleos de comunicación: una escalera principal junto a medianera noroeste y dos ascensores cerca de la entrada del hotel y con acceso desde el vestíbulo principal. La segunda escalera será de emergencia. Según las estimaciones del presupuesto que recoge el proyecto básico la inversión de la obra asciende a unos 3,1 millones de euros.
En la planta baja estará el vestíbulo principal, la recepción, despacho, el guardaequipajes, un bar-cafetería y el acceso rampa al garaje. En el interior de la manzana, la planta baja se eleva 1,4 metros sobre la rasante del edificio y alberga 24 habitaciones con una tipología de pasillo central y patios interiores para la iluminación y ventilación de las estancias.
Por su parte, la planta primera albergará tres habitaciones y el despacho de dirección, mientras que la segunda, tercera y quinta plantas tendrán cinco habitaciones cada una. El cuarto piso, en cambio, constará de cuatro habitaciones, una de ellas con salón; y la planta ático, de tres estancias.
Con esta apertura, la cadena Zenit sumará su segundo establecimiento en València, donde ya cuenta con un hotel categoría cuatro estrellas en la calle Bailén, a solo unos metros de la Estación del Norte y muy cerca de la plaza del Ayuntamiento. Actualmente la compañía cuenta con más de una veintena de establecimientos, entre hoteles y apartamentos turísticos, en España, Andorra, Hungría y Portugal.